松濤サン・エルサ

15.9万円 (2.37万円/坪)

管理/共益費 -

東京都渋谷区松濤1丁目

山手線「渋谷」駅徒歩7分

京王井の頭線「神泉」駅徒歩9分

千代田線「代々木公園」駅徒歩11分

価格
15.9万円(2.37万円/坪) 管理/共益費 -
面積
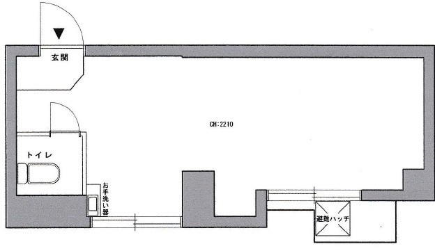
6.68坪(22.08㎡)
所在地
東京都渋谷区松濤1丁目
築年
1961年6月(築64年)
駐車
-
交通

山手線渋谷」駅 徒歩7分

京王井の頭線神泉」駅 徒歩9分

千代田線代々木公園」駅 徒歩11分

松濤サン・エルサの基本情報

物件名
松濤サン・エルサ
価格
15.9万円(2.37万円/坪)
管理/共益費
-
築年月
1961年6月(築64年)
所在地
東京都渋谷区松濤1丁目
交通

山手線渋谷」駅 徒歩7分

京王井の頭線神泉」駅 徒歩9分

千代田線代々木公園」駅 徒歩11分

松濤サン・エルサの詳細情報

設備条件
  • エレベーター
  • 光ファイバー
  • 防犯カメラ
設備(その他)
    ※照明、※大理石ロビー、※宅配ボックス、※オートロック(夜間)
駐車場/月額
-/-
取引態様
一般媒介

松濤サン・エルサのコメント(おすすめポイント)

◇◆松濤サン・エルサ◆◇渋谷区松濤に建つ貸事務所のご紹介です!JR山手線『渋谷』駅まで徒歩7分!不動産の詳細情報も、株式会社エイコーポレーション(info@acorpo.com)のメールアドレスからお問い合わせいただけます。ご希望条件の記載をしていただくと、お探しの物件が見つかりやすくなります。

松濤サン・エルサで募集中の物件

  1. 4階

    6.68坪 (22.08㎡)

    15.9万円(2.37万円/坪)

よく見られている物件

  1. 文京区本郷1丁目

    - (29.00㎡)

    9.8万円

  2. 文京区本郷5丁目

    - (21.04㎡)

    10.56万円

  3. 文京区湯島4丁目

    - (51.55㎡)

    22.30万円

  4. 文京区湯島4丁目

    - (17.52㎡)

    5.83万円

松濤サン・エルサ

お気軽にお問い合わせください

無料お問い合わせ

株式会社エイコーポレーション 

03-3813-2811

メトロ駅前店/9:00~19:00 土・日・祝/9:00~18:00

(休:年中無休※メトロ駅前店のみ(年末年始を除く))